Gallery 1D Premier #16A

Starting at $3,248
827 Sq. Ft. | 1 Bed | 1 Bath
Available Now

Features

  • Living Areas

    • Ceramic Tile Flooring
    • Wood Floors
  • Kitchen and Bath

    • Garbage disposal
    • Brand-new Kitchen
    • Dishwasher
    • Glass Backsplash
    • Soft-close Cabinets
    • Microwave
    • Designer Cabinets
    • Brand-new Bathroom
    • Backsplash Ceramic Tile
    • Appliances Stainless Steel 2014
    • Soft-close Drawers
    • Modern Kitchen
    • Quartz Counters
  • Home Attributes

    • Air Conditioner
    • Dryer Stackable
    • Smart Home Door Lock
    • Smart Home Thermostat
    • Corner Apartment
    • Washer Stackable
  • Premium Features

    • Balcony
    • View Bay
    • View Bay East
  • 2D Diagram
  • 2D Diagram Furnished
  • 3D Tour
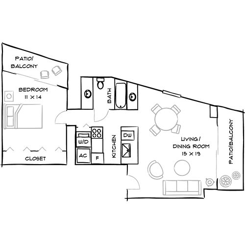
Bay Parc - 1 Bed/1 Bath - Othello Floor Plan

Gallery 1D Premier

This premier 1-bedroom, 1-bathroom floor plan features a private layout with two private balconies. 

Bay Parc - 1 Bed/1 Bath - Othello Floor Plan

Gallery 1D Premier

This premier 1-bedroom, 1-bathroom floor plan features a private layout with two private balconies. 

Gallery 1D Premier

This premier 1-bedroom, 1-bathroom floor plan features a private layout with two private balconies. 

*Apartment prices, availability and terms are subject to change without notice. Apartment photos and floor plans are for illustrative purposes only. Actual square footage, layout, and property or apartment features may vary.